Gîte ∙ 1 bedroom ∙ 4 guests | House in Issel with Balcony

1 Bedroom House in Issel
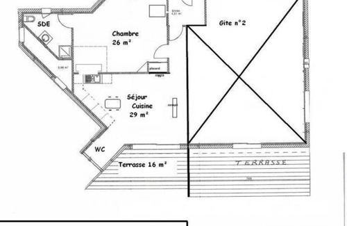
Cottage on the outskirts of a village of lauragais, adjoining has another rural gite. Input common to both cottages but private outdoor terrace. A few km from Castelnaudary and the Canal du Midi, you can enjoy numerous walks in the forests surrounding the village. Parking in the common property. Spa 3 seats on the terrace.
Storey cottage with 1 bedroom with 1 bed in 140 and 1 bed 90, SDE, Wc indep. Living kitchen fully equipped with a double sofa bed in 140, overlooking the private terrace with garden furniture and barbecue. Reversible air-conditioning included. www.villacharline.over-blog.com.