Casa PICCOLINA Villa by the sea in the Cap de Creus natural park between m | House in El Port de la Selva

5 Bedroom House in Port de la Selva, El Port de la Selva
Villa composed of two independent apartments, on the edge of the Mediterranean in the Cap de Creus natural park, not overlooked, very quiet and green area, panoramic view, beaches and village (all shops and restaurants) within walking distance.
Gastronomic and cultural region with many possibilities for walks and swimming.
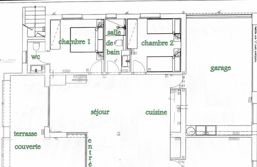
On the ground floor, 120 m² apartment composed of a bedroom (160 cm bed) with bathroom (WC and sink), a bedroom (2 beds of 90 cm), a large bedroom (bed 160 cm), a large living room with equipped American kitchen, a bathroom (Italian shower and WC), a garage-laundry room, open-air and covered terraces, and a landscaped garden (with outdoor shower).
On the 1st floor, 120 m² apartment composed of a bedroom (160 cm bed) and an extra bed (90 cm), a bedroom (2 beds of 90 cm), a very large living room with fitted kitchen and sofa bed (140 cm), a bathroom (Italian shower and toilet), a toilet with sink, a terrace, and a landscaped solarium.
Equipment (for each apartment): wood fireplace, central heating, wifi, stereo, TV (French), electric shutters, double glazing, washing machine, dishwasher, bed linen, plenty of storage, outdoor barbecue (in the garden ), induction hob, oven, microwave, fridge / freezer, basic household and culinary products.
Any additional information can be sent by email.
Casa PICCOLINA Villa by the sea in the Cap de Creus natural park between m is located in Port de la Selva. Casa PICCOLINA Villa by the sea in the Cap de Creus natural park between m provides accommodation, featuring TV, Balcony/Terrace, Child Friendly, among other amenities. This House features TV, Balcony/Terrace, Child Friendly, to make your stay a comfortable one.
Casa PICCOLINA Villa by the sea in the Cap de Creus natural park between m has 5 Bedrooms , 2 Bathrooms, and max occupancy of 10 people. The minimum rental for this property is 1 nights, but this can change depending on the season you plan on staying. Previous guests have given good rated it, and VRBO labeled it a top-rated House because of the excellent services rendered by the owner or manager of this House, and has consistently provided great experiences for their guests. Most families or guests that use it recommend it to their friends and some of them are repeat guests. House has a friendly neighborhood, and the Port de la Selva has interesting places to visit. If you want to learn more about the House in Port de la Selva, such as places to visit and things to do nearby, you can check below to learn more.