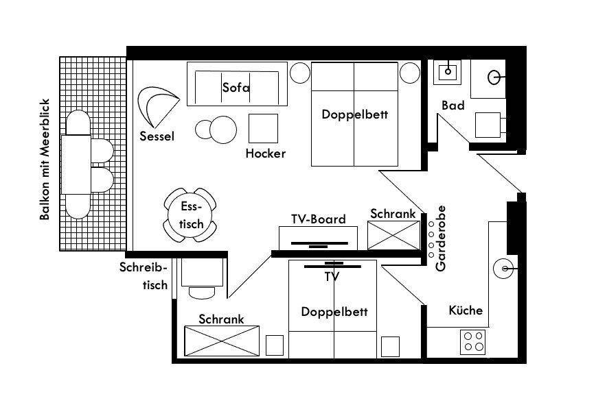
49 m² Apartment ∙ 2 bedrooms ∙ 4 guests | Apartment in Burg auf Fehmarn with Pool
|
2 Bedrooms
1 Bathroom
4 Guests
527 ft²

2 Bedroom Apartment in Fehmarn, Burg auf Fehmarn
Show more
Amenities
Parking
Pool
TV
View
Ocean View
Balcony/Terrace
Oceanfront
Lake View
Accessibility
Transportation/Shuttle
Security/Safety
EV Charge Station
Wellness Facilities
Fireplace/Heating
Guest Services
Entertainment
Eco Friendly
Child Friendly
Internet
Kitchen
Laundry
Area Surrounding
Airport
150 km
Beach
150 m
Shopping
500 m
Water
150 m
Center
4 km
Policies
Cancellation policy
70 percent refund on cancel between 45 days, 50 percent refund on cancel between 30 days, 30 percent refund on cancel between 14 days, 10 percent refund on cancel between 1 days
Check Apartment Availability
Nightly rates from:
USD $87
You will be redirected to
Hot Deal - It has been viewed
170 times today
Not the right fit? Check out our other properties in Fehmarn